Egy Leier Típusház tökéletes választás lehet azoknak, akik szeretnek előre tervezni és a terveiket pontosan és kiszámíthatóan megvalósítani, mind anyagi, mind ütemezési szempontból.
A vállalási díj tartalmazza az alábbi általunk meghatározott alap felszereltségű műszaki tartalmat, kulcsrakész állapotig:
– a típusház alapozási munkálatait
– a LEIER kéregfalak és födém elemek helyszínre szállítását és össze szerelését
– a szerkezet építéshez kapcsodó összes munkátot és anyagokat
– tetőszerkezet építését – bádogozással együtt
– külső nyílászárók beszerelését
– külső hőszigetelést, színvakolattal
– belső nyílászárókat
– belső festési munkálatok
– belső hideg-meleg burkolatok
– gépészeti szerelések – szerelvényekkel együtt
– villamos szerelések – szerelvényekkel együtt
A vállalási díj nem tartalmazza:
– kiválasztott típusház tervadaptációját a meglévő telekre
– a telken az építéshez szükséges terület előzetes bontási, tisztítási és egyéb az építéshez nem kapcsolódó földmunkáit
– az alap közművek telekre való bekötésének tervezési illetve kivitelezési munkálatait
– kerítések és kapuk építésének díjait
– térburkolatok és a parképítés díjait
– árnyékolók, pergolák építési költségeit
– konyhabútor tervezését és beépítését
Természetesen igény esetén ezeket a munkákat is vállaljuk, igényfelmérés és külön megállapodás alapján!
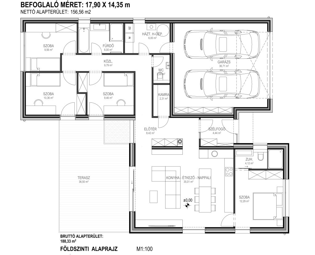
| Bruttó alapterület: | 188.33 m2 | |
| Össz. nettó alapterület (földszint + emelet): | 156.56 m2 | |
| Hasznos alapterület (földszint + emelet): | 156.56 m2 | |
| Terasz összesen: | 36.50 m2 | |
| Tető típusa: | lapos vagy félnyereg | |
| Szobák száma: | nappali + 4 szoba | |
| Fürdőszobák száma: | 2 | |
| Szintek száma: | 1 | |
| Épületmagasság: | 3,58 m | |
| Ideális: | 5 fő |
Kérdése van?
Vegye fel velünk a kapcsolatot!
Kérjük keressen minket bizalommal elérhetőségeink egyikén! Kollégánk tanácsadással segít Önnek a megfelelő típusház kiválasztásában!









